Eladó
Kiadó
Hitel
Szolgáltatás
Kapcsolat
 
Csabai Ingatlanpiac
Telefon: 20/213-5512   
Békéscsaba, Gyóni Géza utca 6.
5 szobás családi ház  25.000.000 Ft

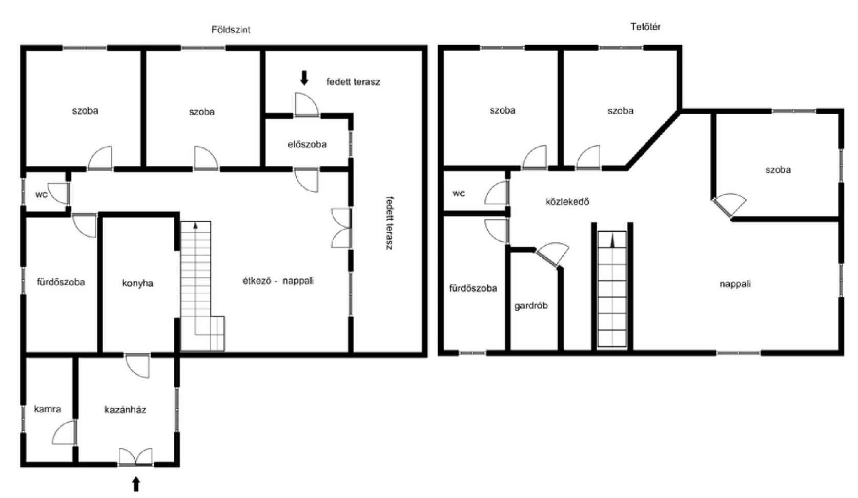
Eladásra kínálok egy 1996-os építésű, szerkezetileg kifogástalan állapotú, kétszintes 180 m2-es, 5 szobás, dupla fürdőszobás, + két nappalival rendelkező családi házat. Az ingatlan 2200 m2-es dupla telken található Vésztő csendes, átmenő forgalomtól mentes részén.

Ingatlan földszinti helységei:

– Előszoba

– Nappali

– Két szoba

– Konyha-étkező

– Kádas fürdőszoba

– Külön helyiségben lévő WC

- Kamra

– Kazánház

– Fedett terasz

Ingatlan tetőtéri helységei:

– Nappali

– Három szoba

– Közlekedő

– Gardrób

– Kádas fürdőszoba

– Külön helyiségben lévő WC

Műszaki tartalom:

– Uniform tégla

– Hőszigetelt üvegezésű külső fa nyílászárók

– Beépített redőnyök + szúnyogháló

– Tégla válaszfalak

– Betonfödém + járóbeton

– Radiátoros fűtés

– Kombi gázkazán, vegyes tüzelésű kazán

Az udvaron van egy különálló 120 m2-es melléképület, amelyben garázs, és gazdasági helyiségek találhatók. A családi ház mérete és egyéb adottságai miatt az ingatlan ár-értékaránya jó, valamint nagycsaládosoknak, vagy akár két generáció részére is megfelelő lehet. Az ingatlan irányára 25 MFt. T: 30/9679-813 

 

Vésztő
Levél küldése:
 



Megtekintett ingatlanok...
 
Békéscsaba 88.000.000
 
0
 
Békéscsaba 9.000.000
 
Békéscsaba 69.900.000
 
Békéscsaba 9.900.000
 
Újkígyós 44.000.000
 
Vésztő 25.000.000
 
Szeged 54.900.000
 
Békéscsaba -14.000.000
 
Békéscsaba 61.000.000
 
Békéscsaba 20.700.000
 
Békéscsaba 24.500.000
 
Békéscsaba 12.900.000
 
Békés 3.500.000
 
0
 
Békéscsaba 28.900.000
 
Békés 5.000.000
 
Kamut 28.000.000
 
Békéscsaba -49.900.000
 
Békéscsaba 35.000.000
 
Kondoros 25.000.000
 
Békéscsaba -59.900.000